
Beschreibung
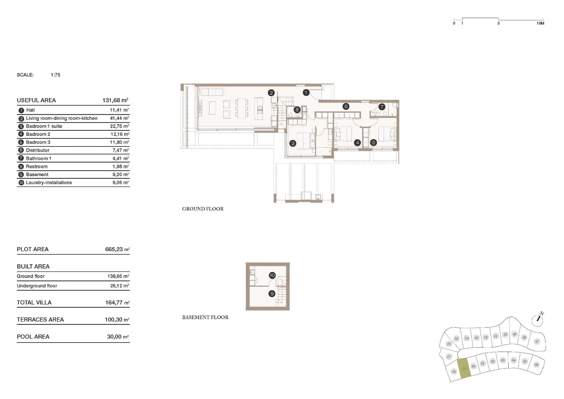
Wunderschöne Luxusvilla auf einer Ebene mit 3 Schlafzimmern und privatem Pool im prestigeträchtigen Las Colinas Golf & Country Club Eine exklusive Kollektion limitierter Premium-Villen auf einer Ebene, konzipiert für komfortables Wohnen ohne Treppen und harmonisch eingebettet in die natürliche Umgebung, die direkt mit dem Freizeitbereich des Resorts verbunden ist. Diese luxuriöse Wohnanlage besteht aus nur 10 exklusiven Villen und besticht durch ein durchdachtes Design, bei dem jedes Detail Ruhe und Ausgewogenheit vermittelt. Die gesamte Raumaufteilung befindet sich im Erdgeschoss und ermöglicht ein komfortables und fließendes Wohnkonzept. Wohn-, Ess- und Küchenbereich gehen nahtlos in einen offenen, lichtdurchfluteten Raum über, ergänzt durch großzügige Schlafzimmer, die auf Entspannung ausgelegt sind. Große Fensterfronten erweitern die Wohnbereiche zu liebevoll gestalteten Terrassen und schaffen ein elegantes Zusammenspiel von Innen- und Außenraum. So entsteht eine private und ruhige Atmosphäre mitten in der Natur. Das mediterrane Design vereint Architektur und Innenausstattung im Einklang mit der Umgebung und setzt auf hochwertige Materialien wie Naturstein und Holz sowie warme Farbtöne und helle Weißnuancen, die das natürliche Licht optimal zur Geltung bringen. Klare Linien und fließende Übergänge schaffen ein stilvolles, zeitloses und einladendes Wohnambiente. Jede Villa verfügt über einen privaten Pool, einen Garten und großzügige Außenbereiche – ideal, um das mediterrane Klima das ganze Jahr über zu genießen. Dank der Lage in einer stark nachgefragten Region bieten diese Immobilien ein hohes Wertsteigerungspotenzial sowie hervorragende Möglichkeiten für die Vermietung im Premiumsegment – eine sichere und rentable Investition. Ein Projekt für alle, die Exklusivität, Lebensqualität und Ruhe in einer einzigartigen natürlichen Umgebung suchen. Das Resort erstreckt sich über ein 330 Hektar großes Tal zwischen Hügeln mit Blick auf das Meer und umfasst einen Championship-Golfplatz. Die geringe Bebauungsdichte und die Integration in die Natur schaffen eine nachhaltige und exklusive Wohnumgebung mit über 200.000 m2 Grünflächen, Wanderwegen und mediterraner Vegetation mit Zitronen- und Orangenhainen. Verpassen Sie diese Gelegenheit nicht! Kontaktieren Sie Sundream Properties und vereinbaren Sie noch heute Ihre private Besichtigung. Machen Sie den ersten Schritt zu Ihrem Traumhaus an der Costa Blanca.
Unverbindlich anfragen
Interesse an diesem Objekt?
Stellen Sie Ihre Fragen direkt zum Objekt. Ich melde mich mit einer ehrlichen Einschätzung zurück.