
Beschreibung
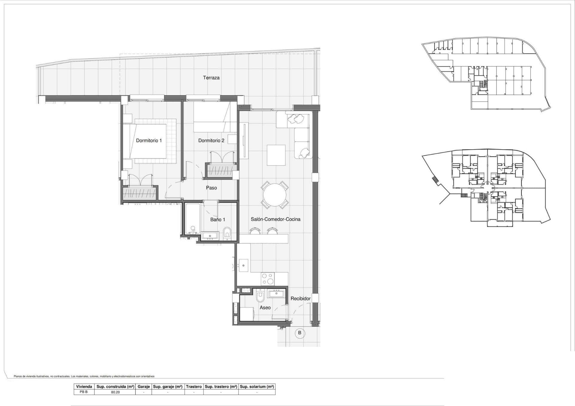
Neubauwohnung mit 2 Schlafzimmern in Bigastro (Alicante) zu verkaufen Modernes Wohnen in Vega Baja del Segura Diese neue Wohnanlage befindet sich im Herzen der Region Vega Baja del Segura, in der charmanten Stadt Bigastro, Alicante. Bigastro ist bekannt für seine friedliche Atmosphäre und seine traditionelle Umgebung und bietet eine ausgezeichnete Balance zwischen Natur, Komfort und der Nähe zu den wichtigsten Küstenorten der Costa Blanca. Nur wenige Minuten von Orihuela entfernt und in der Nähe von Torrevieja und Guardamar del Segura gelegen, ist dieser Standort ideal für diejenigen, die Ruhe suchen, ohne auf Anbindung und Dienstleistungen verzichten zu müssen. Moderne Wohnungen mit Außenbereichen Das Gebäude besteht aus einem Erdgeschoss und drei Etagen und bietet moderne Wohnungen mit 2 Schlafzimmern, 1 Badezimmer und 1 Gästetoilette, mit genügend Platz für eine zusätzliche Dusche. Jede Wohnung wurde so gestaltet, dass der Platz und das natürliche Licht optimal genutzt werden. Die Wohnungen im Erdgeschoss verfügen über große Terrassen oder private Gärten, die Wohnungen in den mittleren Etagen bieten geräumige Terrassen und die Penthäuser verfügen über private Sonnenterrassen, die sich perfekt für das Leben im Freien das ganze Jahr über eignen. Hochwertige Ausstattung und inklusive Merkmale Alle Wohnungen werden mit hochwertigen Ausstattungsmerkmalen geliefert, die auf Komfort und Effizienz ausgelegt sind. Zur Ausstattung gehören eine vollwertige Klimaanlage mit Luftkanälen, möblierte Küchen mit Geräten, elektrische Rollläden und Badezimmer mit Möbeln, Spiegeln und Duschwänden. Zu jeder Wohnung gehört ein Tiefgaragenstellplatz, und ausgewählte Einheiten verfügen zusätzlich über einen privaten Abstellraum. Gemeinschaftsbereiche und mediterraner Lebensstil Die Wohnanlage verfügt über einen schön gestalteten Gemeinschaftspool und landschaftlich gestaltete Gartenbereiche, die eine entspannte Umgebung für die Bewohner schaffen. Umgeben von traditionellen Feldern, sanften Hügeln und Wanderwegen lädt die Gegend zu Outdoor-Aktivitäten wie Wandern und Radfahren ein und unterstützt einen gesunden mediterranen Lebensstil in einer sicheren und einladenden Umgebung. Lage von Bigastro und lokale Dienstleistungen Bigastro ist eine gemütliche Gemeinde im Süden von Alicante, in deren Nähe alle wichtigen Dienstleistungen wie Supermärkte, Schulen, medizinische Zentren, Sportanlagen und ein vielfältiges gastronomisches Angebot zu finden sind. Trotz ihrer ruhigen Lage verfügt die Stadt über eine hervorragende Verkehrsanbindung über die Autobahn AP 7, sodass man sich schnell und einfach entlang der Costa Blanca fortbewegen kann. Entfernungen zu wichtigen Sehenswürdigkeiten Stadtzentrum von Orihuela: 5 km Strände von Guardamar del Segura: 25 km Torrevieja: 30 km Einkaufszentrum Zenia Boulevard: 30 km Internationaler Flughafen Alicante Elche: 55 km Nächstgelegene Golfplätze: 20 km Ein ideales Zuhause oder eine ideale Investitionsmöglichkeit Ob Sie nun einen dauerhaften Wohnsitz, ein Ferienhaus oder eine kluge Investition an der Costa Blanca suchen, diese neu gebauten Apartments in Bigastro bieten modernes Design, ein hervorragendes Preis-Leistungs-Verhältnis und eine ausgezeichnete Lage. Kontaktieren Sie uns noch heute, um weitere Informationen zu erhalten oder einen Besichtigungstermin zu vereinbaren und sich Ihr neues Zuhause in der Region Vega Baja zu sichern.
Unverbindlich anfragen
Interesse an diesem Objekt?
Stellen Sie Ihre Fragen direkt zum Objekt. Ich melde mich mit einer ehrlichen Einschätzung zurück.
