
Beschreibung
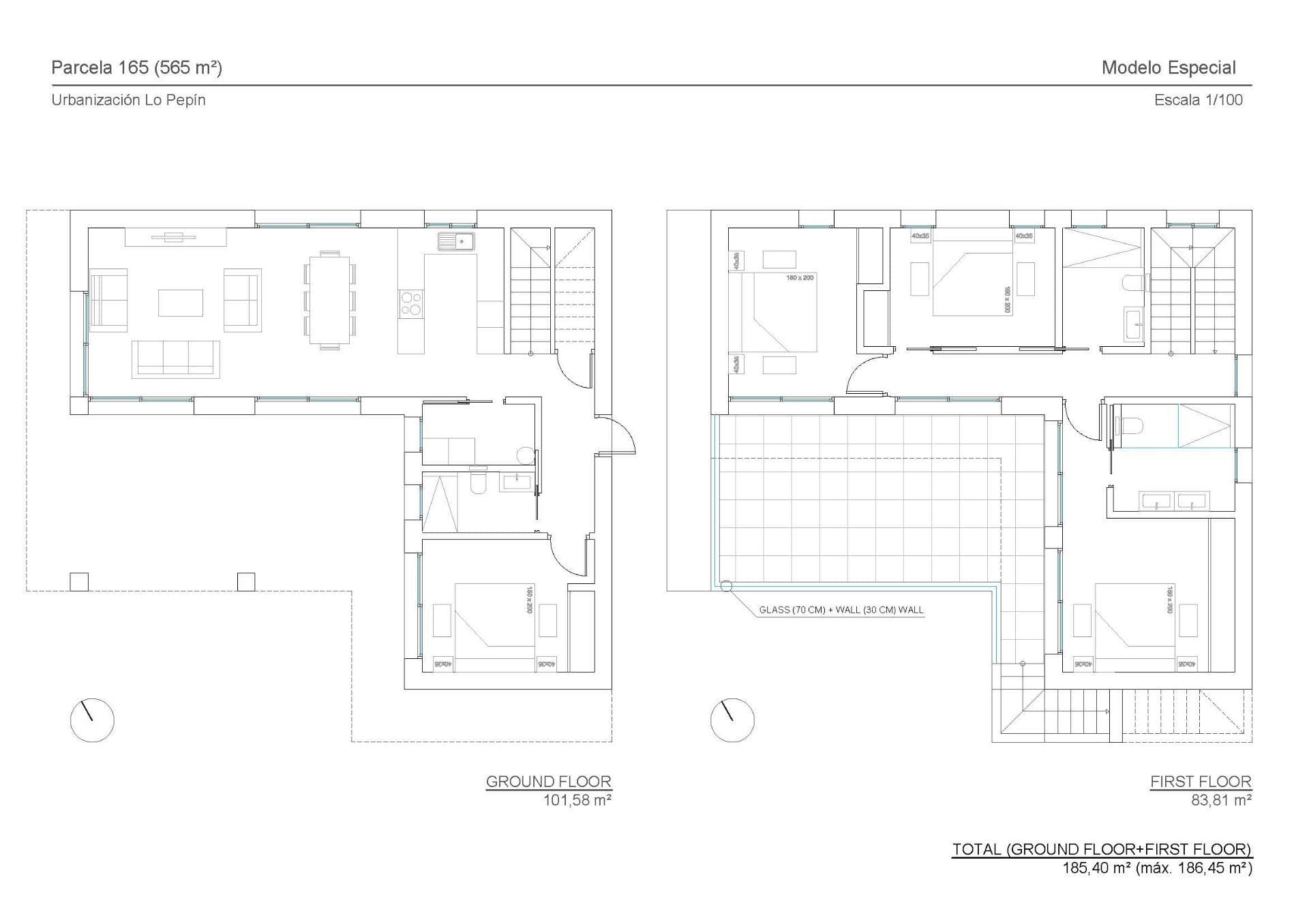
EXKLUSIVE NEU GEBAUTE LUXUSVILLA IN CIUDAD QUESADA (ROJALES). Luxus-Villen mit einem unglaublichen Design, in dem Sie nach Ihrem Geschmack nicht nur das Design, sondern auch alle Oberflächen aus einer breiten Palette von Möglichkeiten (Fliesen, Art der Duschen, Wasserhähne, Waschbecken, Steckdosen und Schalter...) Wir haben 45 verschiedene Modelle, wo Sie die eine, die am besten Ihren Kriterien entspricht und ändern Sie es oder sogar Ihr eigenes Design Zeichnung Ihr eigenes Wohnprojekt wählen können. Alle Villen sind freistehend und haben einen mediterranen und modernen Stil. Wir haben mehrere Grundstücke von 500 m2 bis zu 3.000 m2. Die kleinste Villa ist 130 m2 groß und die häufigste Grundstücksgröße ist 500 m2, aber die Größe der Grundstücke kann erhöht werden, solange die Größe der Villa erhöht wird. Die Häuser können 3, 4 oder 5 Schlafzimmer haben. Alle Grundstücke sind nach den höchsten Standards gebaut und bieten einen atemberaubenden Blick über Grünflächen, Salzseen und sogar das Meer. Die Immobilie beinhaltet: - Bankgarantien ( Bankgarantien ) - Swimmingpool 8 x 4 Fertig mit Vorinstallation für Heizung. - Finished Garten mit Bewässerungssystem, gefliest und gefliest Pflanzen / Bäume nach Renders / Pläne - Siemens / Bosch Whitegoods Paket (Kühlschrank + Gefrierschrank Combi, Induktion, Haube, Mikrowelle, Backofen, Geschirrspüler und Waschmaschine) - Klimaanlage mit Wifi Airzone System, jedes Schlafzimmer / Wohnzimmer laufen unabhängig. Es ist sehr nah an allen Dienstleistungen von Ciudad Quesada und Umgebung wie Supermärkte, Apotheken, Banken, Restaurants und Naturpark befindet sich ganz in der Nähe unserer Grundstücke, und der Strand von Moncayo, einer der besten Strände der Costa Blanca mit blauer Flagge ausgezeichnet. Der Flughafen von Alicante ist in 20 Minuten zu erreichen und die Strände von Guardamar, La Mata oder Torrevieja in 15 Minuten. Rojales bietet ein reichhaltiges und abwechslungsreiches Gastronomie- und Freizeitangebot und verfügt über den renommierten Golfplatz La Marquesa Golf für Golfliebhaber. Lassen Sie sich diese Gelegenheit zum Bau Ihres Traumhauses nicht entgehen und kontaktieren Sie Sundream Properties.
Unverbindlich anfragen
Interesse an diesem Objekt?
Stellen Sie Ihre Fragen direkt zum Objekt. Ich melde mich mit einer ehrlichen Einschätzung zurück.
