
Beschreibung
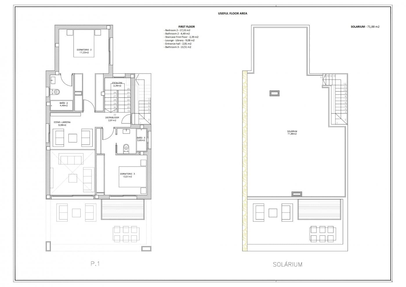
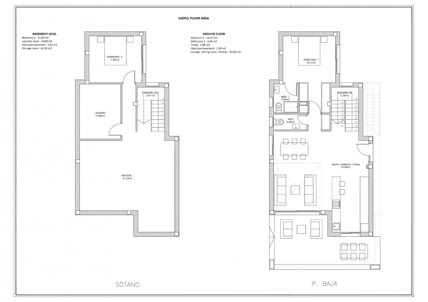
NEUBAUE VILLEN IN TORREVIEJA Villen hat 4 Schlafzimmer, 4 Bäder, offene Küche mit dem Wohnbereich, Einbauschränke, privater Garten mit dem Pool und Off-Road-Parkplatz, private Sonnenterrasse und Keller. Villas befindet sich 15 Minuten zu Fuß zum berühmten Playa de La Mata (5 Minuten mit dem Auto). Torrevieja ist eine spanische Stadt in der Provinz Alicante, an der Costa Blanca. Sie ist für ihr typisch mediterranes Klima und ihre Küstenlinie bekannt. Entlang der Sandstrände gibt es Strandpromenaden mit Ferienanlagen. Das kleine Museum des Meeres und des Salzes beherbergt Ausstellungen über die Geschichte der Fischerei und des Salzes in der Stadt. Im Landesinneren befindet sich der Naturpark Lagunas de La Mata-Torrevieja mit Wanderwegen und zwei salzhaltigen Lagunen, von denen eine rosa und die andere grün ist. Der Flughafen Alicante ist 40 Minuten und der Flughafen Murcia etwa 1 Stunde entfernt.
Unverbindlich anfragen
Interesse an diesem Objekt?
Stellen Sie Ihre Fragen direkt zum Objekt. Ich melde mich mit einer ehrlichen Einschätzung zurück.
